Holmefield, Sale

6 bedroom Semi-detached house

£1,150,000

  • 6 bedrooms
  • 3 bathrooms
  • 2 receptions
  • Key Information:
  • Tenure: Freehold

Key Features

  • Double Driveway
  • Home gym
  • 6 Double Bedrooms
  • Plenty of storage space
  • South Facing Patio
  • South West Facing Garden
  • Wine cellar

Description

Situated on the desirable Holmefield in Sale, this substantial semi-detached property offers an impressive blend of space, character and versatility, ideal for growing families or those seeking flexible living accommodation across multiple floors.

The property boasts six generously sized double bedrooms, providing ample room for family living, guest accommodation or home working. The ground floor features two spacious reception rooms, offering elegant yet comfortable spaces for both relaxation and entertaining, along with a large open-plan kitchen diner which forms the heart of the home. Designed for modern family life, this impressive space is ideal for both everyday living and hosting, with patio doors opening directly onto a beautifully maintained South West facing garden, allowing natural light to flood the room and creating seamless indoor-outdoor living.

The garden is a standout feature of the property, offering a generous and private outdoor space that has been carefully landscaped and well maintained. The outdoor patio area provides the perfect setting for dining, entertaining and enjoying the afternoon and evening sun thanks to its desirable South West aspect.

The lower ground floor provides excellent additional accommodation, with a partly tanked basement offering flexible space suitable for a home gym, utility room, workshop and recreation room. A wine cellar adds further character and appeal, ideal for those who enjoy entertaining or appreciate additional storage with a distinctive feature.

The property benefits from two well-proportioned family bathrooms, along with a convenient downstairs bathroom complete with shower, ensuring practicality for busy households and larger families.

Holmefield is a highly desirable location within Sale, well positioned for excellent local schools, a wide range of amenities, green spaces and convenient transport links into Manchester and surrounding areas, making it an ideal choice for commuters and families alike.

This is a rare opportunity to acquire a spacious and versatile home in one of Sale's most desirable areas, offering extensive accommodation, a superb garden and significant potential for a variety of lifestyle needs.

Council Tax Band: E
Tenure: Freehold
Parking options: Driveway
Garden details: Rear Garden


Location


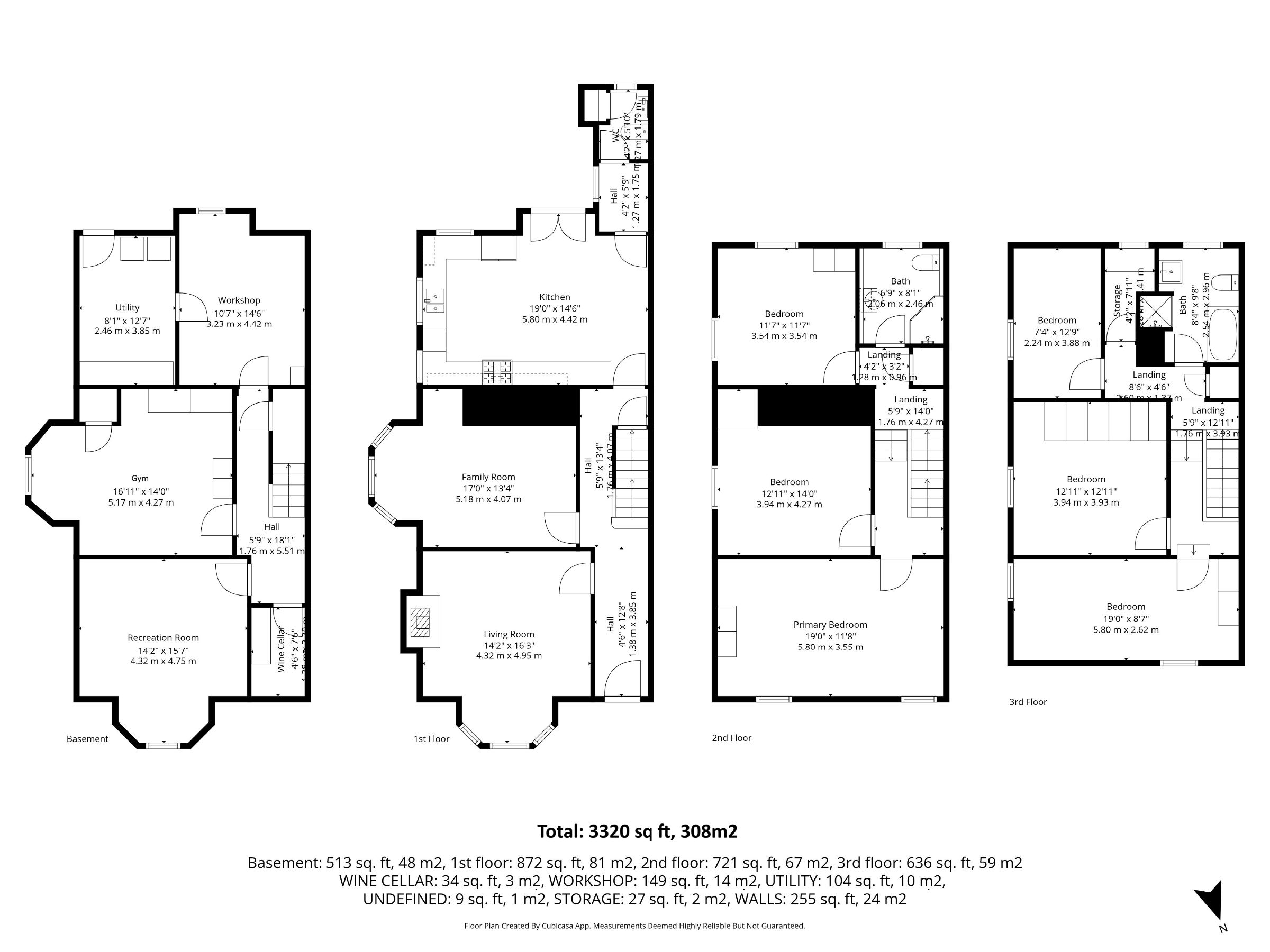
Floorplan

Floorplan for Holmefield, Sale

Similar Properties

Bodmin Road, Sale
Sold STC

Bodmin Road, Sale

3 Bed Terraced House Sold STC
Offers over £325,000
The Avenue, Sale
For Sale

The Avenue, Sale

5 Bed Detached house For Sale
Offers over £1,250,000
Wentworth Drive, Sale
Sold STC

Wentworth Drive, Sale

3 Bed Semi-detached house Sold STC
Offers over £490,000